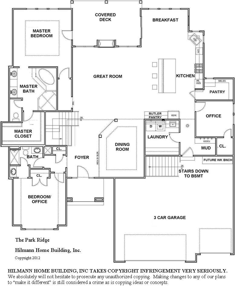
The Park Ridge

1 Story
Starting at 3465 ft2
Bedrooms: 5
Bathrooms: 4
Garages: 3

The Park Ridge

One of our most popular plans, “Park Ridge” Reverse Story and a half! Incredibly open floor plan. Kitchen features expansive Island with lots of cabinetry including granite countertops overlooking the Living and large Breakfast area. Walk-in pantry with lots of storage and desk area. Butler’s cabinetry conveniently located next to dining room. Covered porch with fireplace great for entertaining. Great room features a stunning see-through fireplace with floor to ceiling manmade stone. Master Suite features a large soaker tub, walk-in euro-style shower, his & her vanities with granite countertops. The lower Level offers a large family room with optional fireplace and/or wet bar. Lots of unfinished space for storage or future finished possibilities. One of the most unique features of this home, is the stairway in the garage that offers access to the basement without the need to enter the home.